Start Wielkopolskie Poznań Wielkopolskie, Poznań, 3177/11661/OMS

Poznań, ul. Górna Wilda Województwo: Wielkopolskie

5
Piętro
3
Pokoje
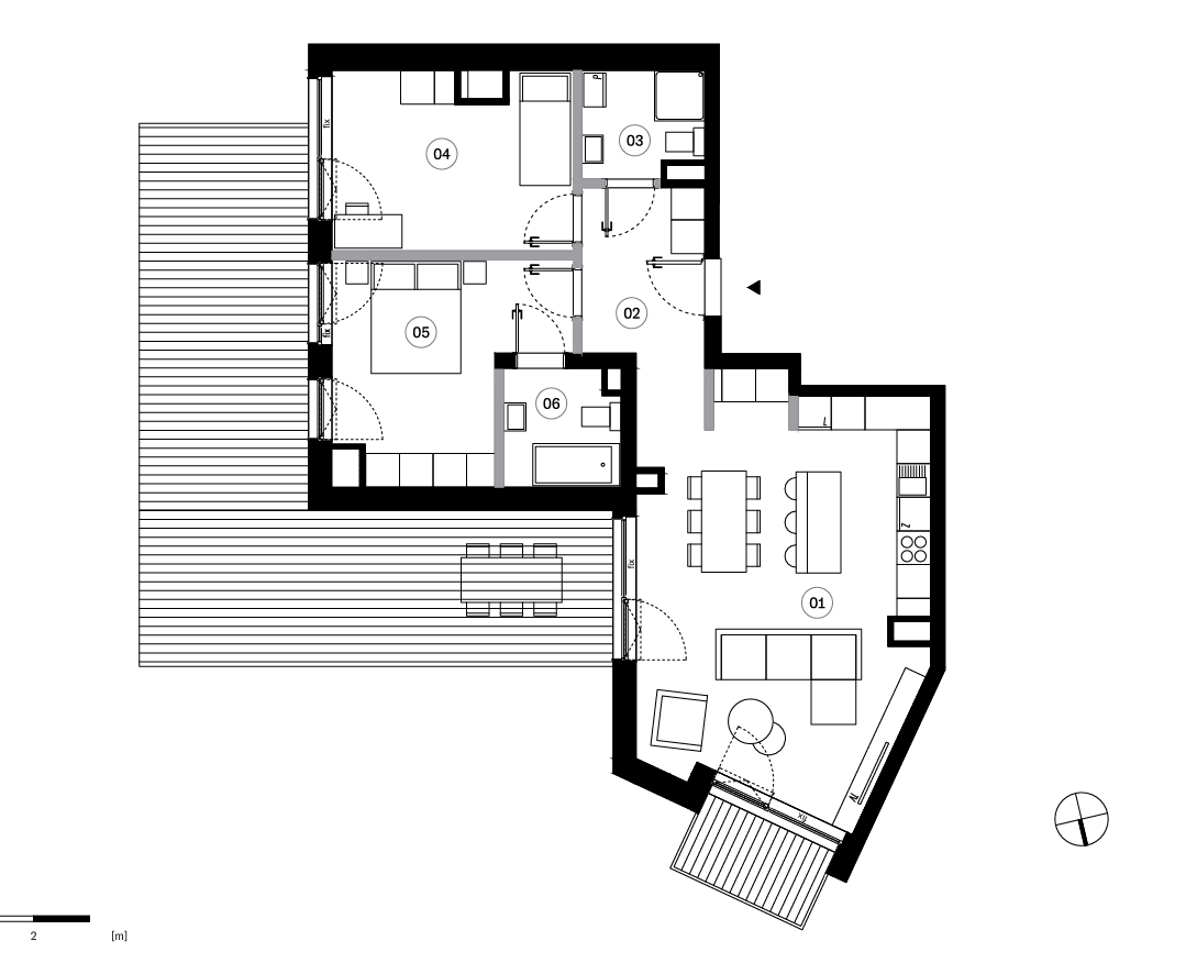
78.18 m2
Pow. całkowita
Z garażem

Cena

Sprzedaż mieszkań
1 594 872 PLN
Cena za m2: 20400 PLN

Kontakt

Julia Konieczna 730555107

Opis

78 m² | 44 m² tarasu | Budynek A – PREMIUM | Wilda | Poznań

Są mieszkania poprawne.
Są mieszkania wygodne.
I są takie, które zostają w pamięci.
Ten apartament należy do tej trzeciej kategorii.

Światło. Przestrzeń. Cisza nad miastem.
Piąte piętro. Otwierasz drzwi i wchodzisz do niemal 3-metrowej, pełnej światła przestrzeni.
Salon o powierzchni 35 m² oddycha – wysokie, drewniane okna prowadzą wzrok w stronę loggii i dalej, ku panoramie Wildy, gdzie zabytkowe kamienice spotykają się z nowoczesną architekturą centrum.
Poranne słońce wpada od strony południowo-wschodniej.
Po południu światło przenosi się na drugą stronę apartamentu – na prywatny, ponad 44-metrowy taras.
I to właśnie on zmienia wszystko.

44 m² prywatnego miasta To nie balkon.
To nie dodatek.
To przestrzeń, która pozwala żyć inaczej.

Letnie kolacje przy długim stole.
Zieleń w dużych donicach.
Strefa lounge z miękkimi tkaninami.
Poranna kawa w ciszy nad miastem.
W centrum Poznania taka przestrzeń jest luksusem – i rzadkością.

Funkcjonalność w eleganckiej formie 78,18 m² zaprojektowane bez kompromisów:
  • reprezentacyjny salon z aneksem
  • dwie komfortowe sypialnie
  • dwie łazienki
  • wygodny hol
  • loggia + spektakularny taras
  • komórka lokatorska


Układ daje swobodę – zarówno dla pary, rodziny 2+1, jak i dla osób pracujących z domu, które potrzebują gabinetu.

Budynek A – najbardziej kameralny adres inwestycji Zaledwie 19 apartamentów.
  • Recepcja i eleganckie lobby.
  • Monitoring i teren zamknięty.
  • Wysokiej klasy materiały, solidne ściany, bardzo dobra akustyka.
  • Wysokość pomieszczeń ok. 2,9 m.
  • Drewniane, trzyszybowe okna.
  • Możliwość montażu klimatyzacji.
To architektura, która nie epatuje – ale buduje poczucie jakości.

Lokalizacja, która dojrzewa jak dobre wino Wilda to dziś jedno z najbardziej pożądanych miejsc w Poznaniu.
Kilka minut spacerem do:
– Starego Browaru
– Nowego Rynku
– Starego Miasta
– parków i terenów zielonych

Tu historia kamienic spotyka nowoczesne biurowce i miejską energię.
Tu można żyć bez samochodu, ale mieć wszystko w zasięgu kilku kroków.

To apartament dla osoby która nie szuka metrażu – szuka jakości życia.
nie chce kompromisu między centrum a prywatnością.
rozumie, że prawdziwy luksus to przestrzeń, światło i cisza na własnych zasadach.

To nieruchomość, która nie potrzebuje wielu słów.
Wystarczy wejść na taras i zrozumieć.

Niektóre nieruchomości ogląda się na zdjęciach.
Tę warto poczuć na tarasie.

Umów prywatną prezentację:
Julia Konieczna 
Immo House
+48 730 555 107

Szczegóły ogłoszenia

Id nieruchomości: 3177/11661/OMS
Rok zabudowy: 2026
Dostępny od: 26.02.2026
Materiał: Concrete
Winda: Tak
Rodzaj ogrzewania: CO miejskie
Gaz: Nie
Ciepła woda: Wodociąg miejski
Garaże: W budynku, Garaż
Komunikacja: Kolejka podmiejska, Kolej, Lotnisko, Tramwaj, Autobus
Dostępne w okolicy: Basen, Przystań, Centrum handlowe, Plac zabaw, Fitnes, Rzeka, Kościół, Komenda policji, Żłobek, Jezioro, Hala sportowa, Bar, Szpital, Las, Szkoła, Apteka, Przychodnia lekarska, Bazarek, Sklep, Kort tenisowy, Przedszkole, Bank, Park, Uczelnia, Blacharnia, Restauracja
Alarm: Tak
Ochrona: Tak
Domofon: Tak
Recepcja: Tak
Monitoring: Tak
Teren ogrodzony: Tak

Skontaktuj się z naszym zespołem

ul. Wyspiańskiego 14/3
60-750 Poznań
Godziny otwarcia:

pn – pt  10:00 – 17:00

Wyślij wiadomość
© Immo House 2026
Realizacja NiceIT