Start Wielkopolskie Poznań Wielkopolskie, Poznań, 3169/11661/OMS

Poznań, Województwo: Wielkopolskie

4
Piętro
2
Pokoje
37 m2
Pow. całkowita

Cena

Sprzedaż mieszkań
299 000 PLN
Cena za m2: 8081.08 PLN

Kontakt

Julia Konieczna 730555107

Opis

Na sprzedaż mieszkanie położone w oficynie kamienicy przy ul. Św. Marcin 43 w Poznaniu.
Lokal znajduje się z dala od ruchliwej ulicy, co zapewnia ciszę i spokój mimo ścisłego centrum miasta.
 
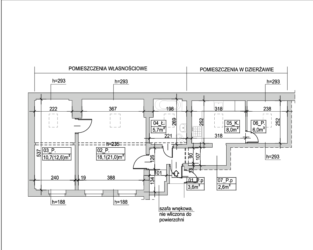
Ważna informacjapowierzchnia
  • 37,1 m² – powierzchnia własnościowa (ujęta w księdze wieczystej)
  • ok. 17 m² – powierzchnia w dzierżawie od właściciela kamienicy
  • łącznie ok. 54 m² powierzchni użytkowej
Mieszkanie składa się z części własnościowej oraz części dzierżawionej, co zostało uwzględnione w dokumentacji technicznej lokalu

Rozkład mieszkania:

  • część własnościowa:
    • przedpokój – 3,1 m²
    • pokój – 17,8 m²
    • pokój – 10,5 m²
    • łazienka – 5,7 m²
  • część w dzierżawie:
    • kuchnia – 8,0 m²
    • pokój – 6,0 m²
    • przedpokój – 2,6 m²

 Szczegółowy rzut lokalu znajduje się w dokumentacji

 Standard i wyposażenie:
  • mieszkanie umeblowane – gotowe do zamieszkania lub wynajmu
  • oddzielna kuchnia
  • łazienka z wanną i pralką
  • okna dachowe – dobre doświetlenie wnętrz
  • ogrzewanie miejskie
  • spokojna oficyna mimo ścisłego centrum

Lokalizacja:
Ul. Św. Marcin – jedna z najbardziej rozpoznawalnych i pożądanych lokalizacji w Poznaniu. W bezpośrednim sąsiedztwie:
  • Stary Rynek
  • uczelnie (UAM, UE)
  • komunikacja tramwajowa i autobusowa
  • sklepy, restauracje, kawiarnie, punkty usługowe

Dlaczego warto:
  • topowa lokalizacja inwestycyjna
  • realnie większa powierzchnia użytkowa dzięki dzierżawie
  • układ pozwalający na wynajem pokoi
  • oficyna = cisza w centrum
  • idealne pod najem długoterminowy lub studencki


ZAPRASZAM do kontaktu i na prezentację.
Julia Konieczna 
730-555-107
IMMOHOUSE

Szczegóły ogłoszenia

Id nieruchomości: 3169/11661/OMS
Dostępny od: 01.02.2026
Materiał: Brick
Winda: Nie
Umeblowany: Tak
Rodzaj ogrzewania: Gaz
Gaz: Tak
Ciepła woda: Piec gazowy
Garaże: Na ulicy
Komunikacja: Tramwaj, Autostrada, PKS, Bus, Autobus, Lotnisko
Dostępne w okolicy: Przychodnia lekarska, Żłobek, Plac zabaw, Kościół, Kort tenisowy, Sklep, Centrum handlowe, Rzeka, Hala sportowa, Bank, Apteka, Przedszkole, Uczelnia, Fitnes, Park, Basen, Restauracja, Komenda policji, Gimnazjum, Szkoła, Szpital, Bazarek
Alarm: Nie
Ochrona: Nie
Domofon: Tak
Recepcja: Nie
Monitoring: Nie
Teren ogrodzony: Nie

Skontaktuj się z naszym zespołem

ul. Wyspiańskiego 14/3
60-750 Poznań
Godziny otwarcia:

pn – pt  10:00 – 17:00

Wyślij wiadomość
Immohouse.pl 2021
Realizacja NiceIT