Start Wielkopolskie Tarnowo Podgórne Wielkopolskie, Tarnowo Podgórne, 3098/11661/OMS

Tarnowo Podgórne, ul. 23 Października Województwo: Wielkopolskie

4
Pokoje
99.62 m2
Pow. całkowita
400 m2
Pow. działki

Cena

Sprzedaż mieszkań
750 000 PLN
Cena za m2: 7528.61 PLN

Kontakt

Jan Buchowski 690881655

Opis

  Polecam na sprzedaż nieruchomość położoną w Tarnowie Podgórnym.

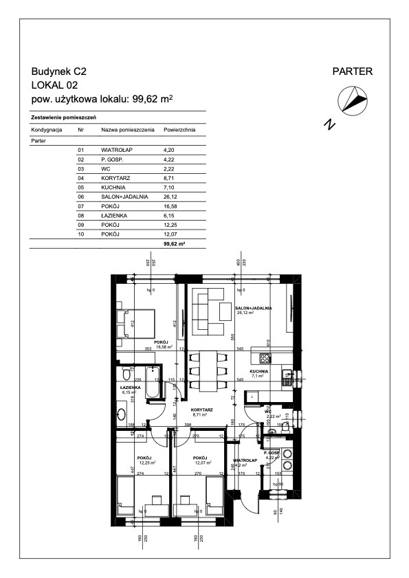
Jest to lokal mieszkalny parterowy o powierzchni 99,62 składający się z: 
  • WIATROŁAP 4,20 m2
  • P. GOSP. 4,22 m2
  • 03  WC 2,22 m2 
  • 04  KORYTARZ 8,71 m2 
  • 05  KUCHNIA 7,10 m2 
  • 06  SALON+JADALNIA 26,12 m2 
  • 07  POKÓJ 16,58 m2
  • 08  ŁAZIENKA 6,15 m2 
  • 09  POKÓJ 12,25 m2
  • 10  POKÓJ 12,07 m2 

Nieruchomość znajduje się na osiedlu nowo wybudowanych domów w cichej i spokojnej okolicy Tarnowa Podgórnego.

Dostęp do licznych punktów usługowych w okolicy. Nie tracąc czasu tutaj można załatwić wszystko! W pobliżu apteki, piekarnie oraz sklepy spożywcze Lidl, Netto.

Miłośnicy aktywnego trybu życia mogą codziennie trenować bieganie bezpiecznymi bezdrożami miejscowości. Amatorom golfa polecamy wspaniałe pole "Black Water". W pobliżu również Termy Tarnowskie oraz miejska plaża jeziora lusowskiego.

Dla rodzin z dziećmi to wymarzona okolica do spacerowania, gdzie znajdują się place zabaw. W bliskim sąsiedztwie szkoła podstawowa, przedszkola, technikum oraz liceum.

Dojazd do centrum Poznania trwa 15 minut. W pobliżu osiedla kursują autobusy komunikacji miejskiej, w tym również nocne

Nieruchomość wyposażona jest w:
  • piec gazowy
  • instalację alarmową
  • instalację ogrzewania podłogowego,
  • instalację światłowodową 
  • rolety zewnętrzne
  • działka ok. 400 m2
  • 2 miejsca postojowe przed lokalem 

Wolne od zaraz

Zapraszam do kontaktu i na prezentację
Jan Buchowski 

Ogłoszenie nie stanowi oferty w rozumieniu przepisów KC




Szczegóły ogłoszenia

Id nieruchomości: 3098/11661/OMS
Rok zabudowy: 2025
Dostępny od: 28.02.2025
Powierzchnia działki m2: 400
Materiał: SandLimeBrick
Rodzaj ogrzewania: Gaz
Gaz: Tak
Ciepła woda: Piec gazowy
Komunikacja: Autobus
Dostępne w okolicy: Kort tenisowy, Basen, Jezioro, Bank, Szkoła, Las, Park, Restauracja, Przedszkole, Fitnes, Centrum handlowe
Alarm: Nie
Domofon: Nie
Monitoring: Nie

Skontaktuj się z naszym zespołem

ul. Wyspiańskiego 14/3
60-750 Poznań
Godziny otwarcia:

pn – pt  10:00 – 17:00

Wyślij wiadomość
Immohouse.pl 2021
Realizacja NiceIT