Start Wielkopolskie Tarnowo Podgórne Wielkopolskie, Tarnowo Podgórne, 984/11661/ODS

Tarnowo Podgórne, ul. 23 Października Województwo: Wielkopolskie

4
Pokoje
99.62 m2
Pow. całkowita
99.62 m2
Pow. użytkowa
400 m2
Pow. działki

Cena

Sprzedaż domu
750 000 PLN
Cena za m2: 7528.61 PLN

Kontakt

Jan Buchowski 690881655

Opis

Polecam na sprzedaż nieruchomość położoną w Tarnowie Podgórnym.

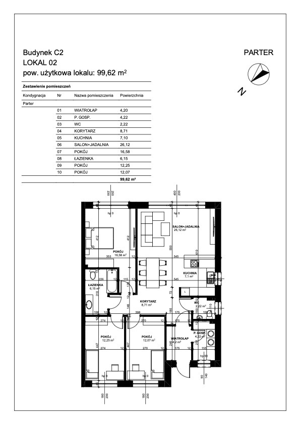
Jest to lokal mieszkalny parterowy o powierzchni 99,62 składający się z: 
  • WIATROŁAP 4,20 m2
  • P. GOSP. 4,22 m2
  • WC 2,22 m2 
  • KORYTARZ 8,71 m2 
  • 05  KUCHNIA 7,10 m2 
  • 06  SALON+JADALNIA 26,12 m2 
  • 07  POKÓJ 16,58 m2
  • 08  ŁAZIENKA 6,15 m2 
  • 09  POKÓJ 12,25 m2
  • 10  POKÓJ 12,07 m2 

Nieruchomość znajduje się na osiedlu nowo wybudowanych domów w cichej i spokojnej okolicy Tarnowa Podgórnego.

Dostęp do licznych punktów usługowych w okolicy. Nie tracąc czasu tutaj można załatwić wszystko! W pobliżu apteki, piekarnie oraz sklepy spożywcze Lidl, Netto.

Miłośnicy aktywnego trybu życia mogą codziennie trenować bieganie bezpiecznymi bezdrożami miejscowości. Amatorom golfa polecamy wspaniałe pole "Black Water". W pobliżu również Termy Tarnowskie oraz miejska plaża jeziora lusowskiego.

Dla rodzin z dziećmi to wymarzona okolica do spacerowania, gdzie znajdują się place zabaw. W bliskim sąsiedztwie szkoła podstawowa, przedszkola, technikum oraz liceum.
Dojazd do centrum Poznania trwa 15 minut. W pobliżu osiedla kursują autobusy komunikacji miejskiej, w tym również nocne

Nieruchomość wyposażona w:
  • piec gazowy
  • Instalacje alarmowa, 
  • ogrzewania podłogowego,
  • światłowodową 
  • Rolety zewnętrzne

Działka ok. 400 m2, 2 miejsca postojowe przed lokalem 

WOLNE OD ZARAZ!

Zapraszam do kontaktu i na prezentacje
Jan Buchowski 

Ogłoszenie nie stanowi oferty w rozumieniu przepisów KC




Szczegóły ogłoszenia

Id nieruchomości: 984/11661/ODS
Rok zabudowy: 2025
Dostępny od: 28.02.2025
Powierzchnia użytkowa m2: 99.62
Powierzchnia działki m2: 400
Materiał: SandLimeBrick
Rodzaj ogrzewania: Gaz
Ujęcie wody: Miejska
Rodzaj kanalizacji: CO miejskie
Ciepła woda: Piec gazowy
Komunikacja: Autobus
Dostępne w okolicy: Kort tenisowy, Basen, Restauracja, Park, Fitnes, Przedszkole, Bank, Jezioro, Las, Szkoła, Centrum handlowe
Alarm: Nie
Domofon: Nie
Monitoring: Nie
Kształt działki: Prostokąt
Ogrodzenie: No

Skontaktuj się z naszym zespołem

ul. Wyspiańskiego 14/3
60-750 Poznań
Godziny otwarcia:

pn – pt  10:00 – 17:00

Wyślij wiadomość
Immohouse.pl 2021
Realizacja NiceIT